ビフォーアフター

ビフォー
リフォーム前の状態
ビフォー

アフター
リフォーム後の状態
アフター

ビフォー
リフォーム前の状態
ビフォー

アフター
リフォーム後の状態
アフター

ビフォー
リフォーム前の状態
ビフォー

アフター
リフォーム後の状態
アフター

ビフォー
リフォーム前の状態
ビフォー

アフター
リフォーム後の状態
アフター

ビフォー
リフォーム前の状態
ビフォー

アフター
リフォーム後の状態
アフター

ビフォー
リフォーム前の状態
ビフォー

アフター
リフォーム後の状態
アフター

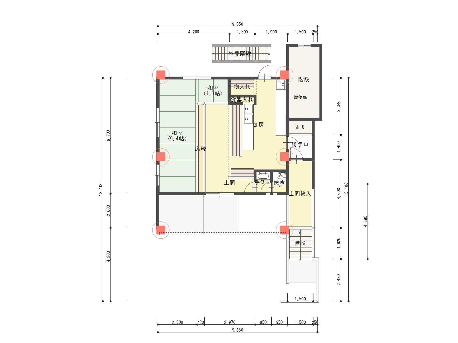
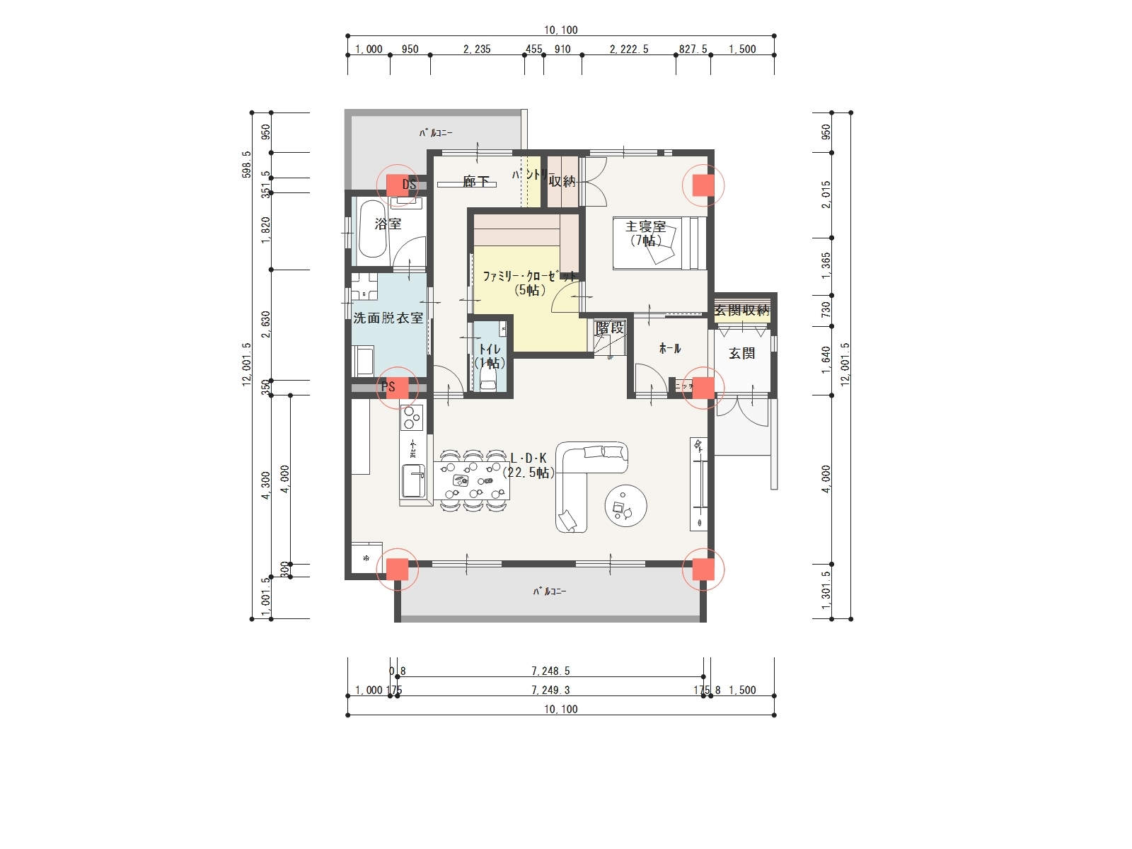
間取り

1階間取り図

店舗改修工事前

1階間取り図

店舗から住居改修工事後

1階間取り図

2階改装工事前

1階間取り図

2階改装工事後

物件情報

施工価格

3,000万円~3,500万円

構造

3階建て以上

延床面積

217.10㎡

敷地面積

187.90㎡

坪単価

45万円~50万円

工法

RC

施工期間

2025年5月~2025年12月

物件の特長

2階の世帯

玄関

タッチレスキー搭載の高断熱玄関ドア。防犯性も上がりました

House photo

玄関ホール

ホールにはちょっとした遊び心を

House photo

LDK

22畳のLDK。 広いだけでなく、右側にはワーキングスペース、左手にはご主人さんの友人が集うバーカウンター(折り畳み式を設けています)

House photo

2階 各部屋の内装仕上げ

キッチンから見るリビング

テレビを掛ける壁には装飾と間接照明を設置しました。

House photo

ワーキングスペース

階段へ行く動線にはカウンターを設けキッズスペース兼ワーキングスペースを作りました

House photo

書斎

畳を設けごろ寝できる趣味の部屋を3階に作りました

House photo

2階 水回り

TOTOクラッソ

キッチンはTOTOのクラッソを採用しました

House photo

タンクレストイレ

掃除しやすく節水なタンクレスタイプのトイレを採用しました

House photo

こだわりの浴室

TOTOシンラを採用し、元のタイル浴室からは想像できない変貌を遂げ快適になりました!

House photo